「サーファーはもちろん、誰もが憧れる鎌倉稲村ヶ崎の220坪」

サーファーなら鎌倉の稲村ヶ崎と聞いて頭に浮かぶのは。
台風からのグランドスウェルが押し寄せ、ここ稲村ヶ崎のリーフにヒットするとビッグウェーブになる。風やウネリのディレクションなど条件が揃った時のみ、過去に2度だけ開催されたことのある伝説のビッグウェーブコンテスト「イナムラクラシック」ではないでしょうか。
普段は穏やかな波であり、地元サーファー中心にメローにサーフィンを楽しんでいる、そんな稲村ヶ崎のすぐ近く、国道134号線から1本入ったところ。
隣には音無川が流れ、鎌倉の海を眺望できる風情ある場所。
今回、なみある?がご紹介する土地物件は、サーファーなら一度は憧れてしまう稲村ヶ崎ポイントから歩いて2分の立地です。
とにかく海のすぐ近く。川のせせらぎが心地よい場所

鎌倉の一等地である稲村ヶ崎にあり、最寄りの稲村ヶ崎駅からも近く、なにより海までは134号線を渡ってすぐ。歩いて2分という好立地の物件。また、コンスタントに波がブレイクしている七里ヶ浜正面ポイントへも自転車で5分ほどでアクセス出来ます。
そんな素敵な場所に一度でも現地へ訪れてそのロケーションに触れてしまうと、頭の中にある想像が無限に広がります。
土地物件情報
江ノ島と鎌倉駅のちょうど間辺りに位置し、周辺では借地権が多い中、希少な所有権の200坪超の雄大な土地となっています。

土地面積:724.57㎡(219.18坪)
権利/所有権 地目/宅地
用途地域/第一種低層住居専用地域
建ぺい率/40% 容積率/80%
その他/2種風致

この土地にはこんな家を建てたい
このKAMAKURA INAMURAGASAKI Projectでは、カリフォルニアデザインのパイオニアである、株式会社ケンロック 岩切剣一郎氏がプロデューサーとなり、夢の住まいづくりのサポートをしていただくことが出来ます。




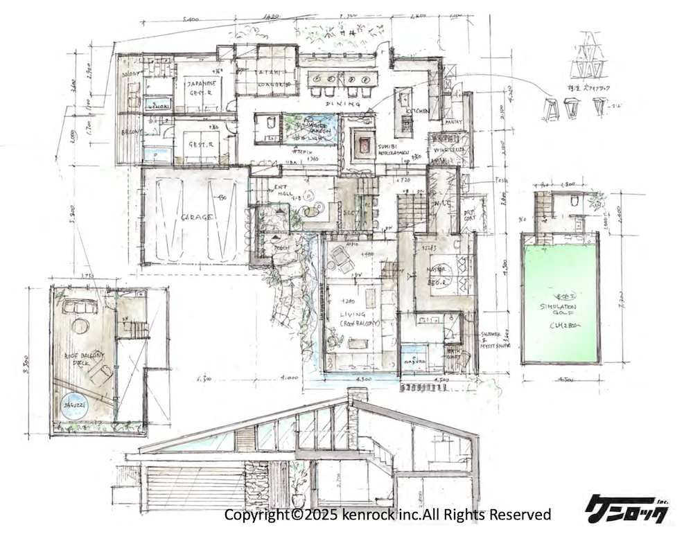
CGパースだとこのような感じに
ミッドセンチュリーをベースに、稲村ヶ崎らしい落ち着きのあるシックな色調とデザイン。古き良きカリフォルニアの雰囲気を残しつつ高級感のあるデザインイメージとなっています。




周辺の風景
古都 鎌倉ならではの情緒あふれる景色が広がる稲村ヶ崎。敷地のすぐ隣を音無川が流れ、ゆっくりと走る江ノ電がすぐ脇を通ります。





敷地内には、この辺りでは有名なシンボルツリーとなっている、何十年とこの土地を見守ってきたであろう大きなタブノキがある。
稲村ヶ崎で希少な220坪の土地は、出来るだけこのままの姿で、樹木や地形を活かして生活を営んでいただきたい。そんな想いの詰まった物件です。
監修
株式会社ラックスエステート
https://lucks-e.com/
株式会社ケンロック
https://www.kenrock.jp/
本物件は不動産公開物件です。
本物件の情報開示において、掲載する土地情報の正確性と信頼性を確保するため、株式会社ラックスエステート監修のもと情報を公開しております。
安心してご検討いただけるよう、最新かつ正確な情報の提供に努めております。
現地見学、販売価格や詳細な土地情報につきましては、なみある?不動産担当より折り返しご連絡いたします。
まずはお問い合わせフォームよりご連絡ください。





